Description

This thoughtfully arranged two-bedroom apartment is set on Earl’s Court Square and offers well-balanced living space within a classic period building.

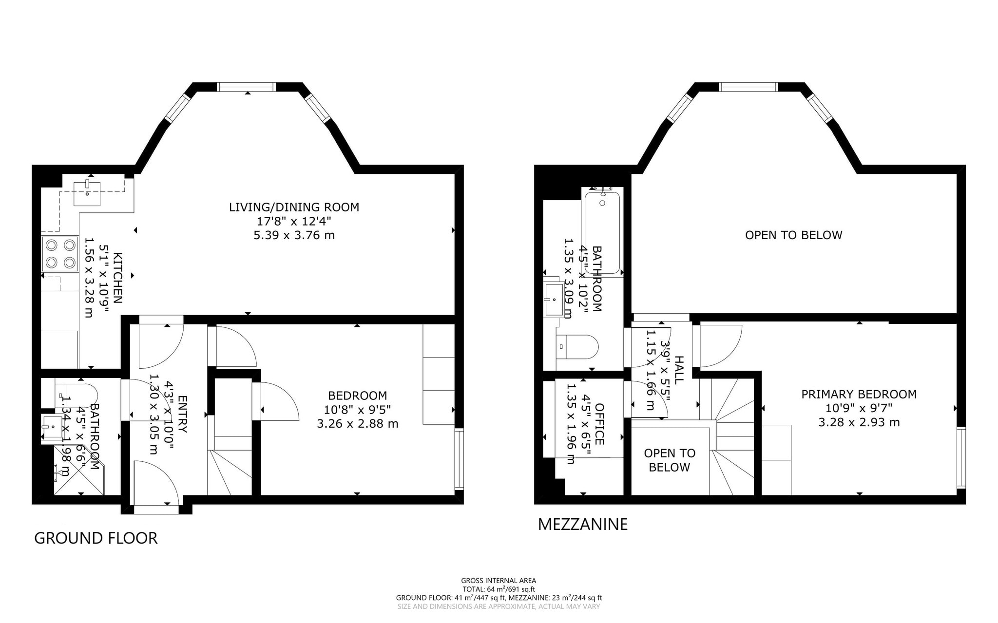
Arranged over the ground and mezzanine floors and extending to approximately 691 sq ft, the property is offered furnished and available immediately. The interior benefits from high ceilings, large windows, and good storage throughout, creating a bright and comfortable living environment.

The accommodation includes an open-plan kitchen and reception area, two bedrooms, and two bathrooms, making the layout well suited to professional sharers or couples. The kitchen is fully equipped with integrated appliances including a dishwasher, washer/dryer, and freezer.

The property may be suitable for an HMO arrangement, subject to offer and terms. Its position provides easy access to Earl’s Court and West Brompton Underground stations, as well as the shops, cafés, and amenities of the surrounding area.

Details

Bedrooms
2
Bathrooms
2
Property Size
691 sq ft
Updated on February 4, 2026 at 10:54 am

Address

  • Address Earls Ct Square
  • City London
  • Zip/Postal Code SW5

Mortgage Calculator

Monthly
  • Down Payment
  • Loan Amount
  • Monthly Mortgage Payment
  • Property Tax
  • Home Insurance
  • PMI
  • Monthly HOA Fees
£
%
%
%
£
£
%

Floor Plans

Schedule a Tour

Your information

Energy Class

  • Energetic class: E
  • A+
  • A
  • B
  • C
  • D
  • | Energy class E
    E
  • F
  • G
  • H

What's Nearby?

Please supply your API key Click Here

Contact Information

Taysser Iahnini
  • Taysser Iahnini
View Listings

Enquire About This Property

0 Review

Sort by:
Leave a Review

Leave a Review

Similar Listings

Compare listings

Compare
Taysser Iahnini
  • Taysser Iahnini