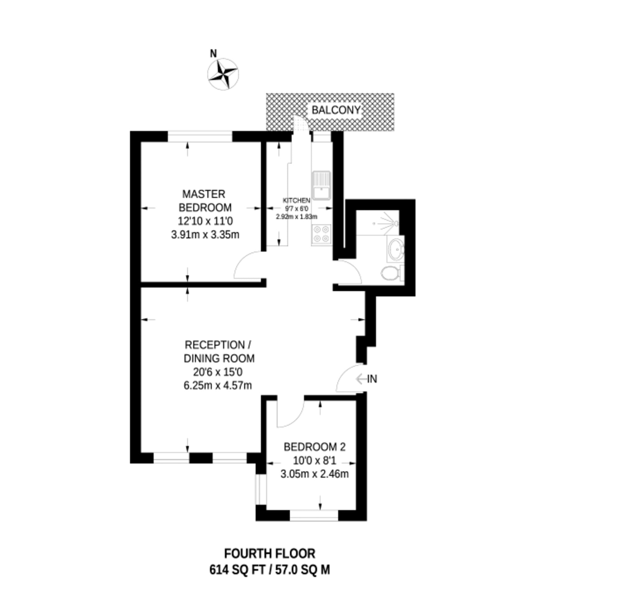
Description

Located on charming Eamont Street in the heart of St John’s Wood, this inviting two-bedroom apartment offers the perfect blend of comfort, light and location. Sitting on the 4th floor and spanning 614 sq ft, the home welcomes you with a bright living space that feels instantly warm and uplifting. The layout is well balanced, with two comfortable bedrooms, a modern bathroom, and a practical kitchen designed for everyday living.

 

Whether you’re enjoying a quiet morning at home or heading out to explore the boutiques, cafés and greenery that make St John’s Wood so sought after, this property places you right at the centre of one of London’s most desirable neighbourhoods. Offered at £750,000 leasehold, with a £4,000 yearly service charge, it’s an ideal home for professionals, couples or anyone looking for a stylish base with a true sense of community.

 

Details

Bedrooms
2
Bathroom
1
Property Size
614 sq ft
Updated on December 5, 2025 at 3:20 pm

Address

  • City London
  • Zip/Postal Code NW8
  • Area St. John's Wood

Mortgage Calculator

Monthly
  • Down Payment
  • Loan Amount
  • Monthly Mortgage Payment
  • Property Tax
  • Home Insurance
  • PMI
  • Monthly HOA Fees
£
%
%
%
£
£
%

Floor Plans

Schedule a Tour

Your information

What's Nearby?

Please supply your API key Click Here

Contact Information

Taysser Iahnini
  • Taysser Iahnini
View Listings

Enquire About This Property

0 Review

Sort by:
Leave a Review

Leave a Review

Similar Listings

Compare listings

Compare
Taysser Iahnini
  • Taysser Iahnini